Architecture
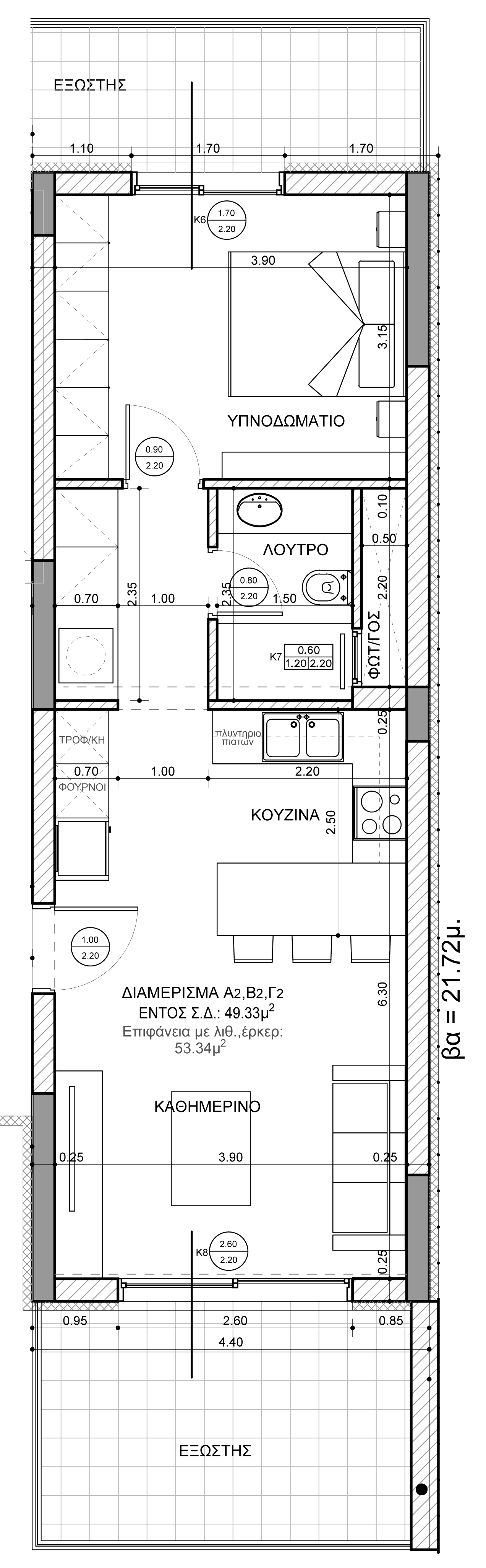
Διαμέρισμα Α
49.33 τ.μ.
1 Υπνοδωμάτιο
1 Λουτρό
Ενιαίο Καθημερινό
Ενδοδαπέδια Θέρμανση
Κάντε Zoom στο σχέδιο με τα δάχτυλα
ΕΠΙΣΤΡΟΦΗ ΣΤΟ SITE